Tiếp nối thành công từ dự án A&T Sky Garden chủ đầu tư A&T Group tiếp tục triển khai dự án A&T 2 mới có tên A&T Saigon Riverside ở Phường Vĩnh Phú, Tp Thuận An, Bình Dương. Dự án A&T Saigon Riverside có vị trí mặt tiền sông Sài Gòn, sát bên bệnh viện Hạnh Phúc ngay quốc lộ 13. Dự án đã có chấp thuận đầu tư, đang trong quá trình xin giấy phép xây dựng để triển khai sớm ra thị trường.
Căn hộ A&T Sky Garden được thiết kế theo phong cách hiện đại, tinh tế và tràn ngập ánh sáng tự nhiên. Không gian được bố trí mở, tạo cảm giác rộng rãi, thông thoáng, đồng thời đảm bảo tính tiện nghi và thẩm mỹ cao. Tông màu chủ đạo là trắng – be kết hợp điểm nhấn gỗ tự nhiên, mang lại cảm giác ấm cúng và sang trọng. Mỗi khu vực chức năng, từ phòng khách, bếp đến phòng ngủ, đều được tối ưu công năng, hướng đến sự tiện lợi trong sinh hoạt và phong cách sống hiện đại của gia chủ.
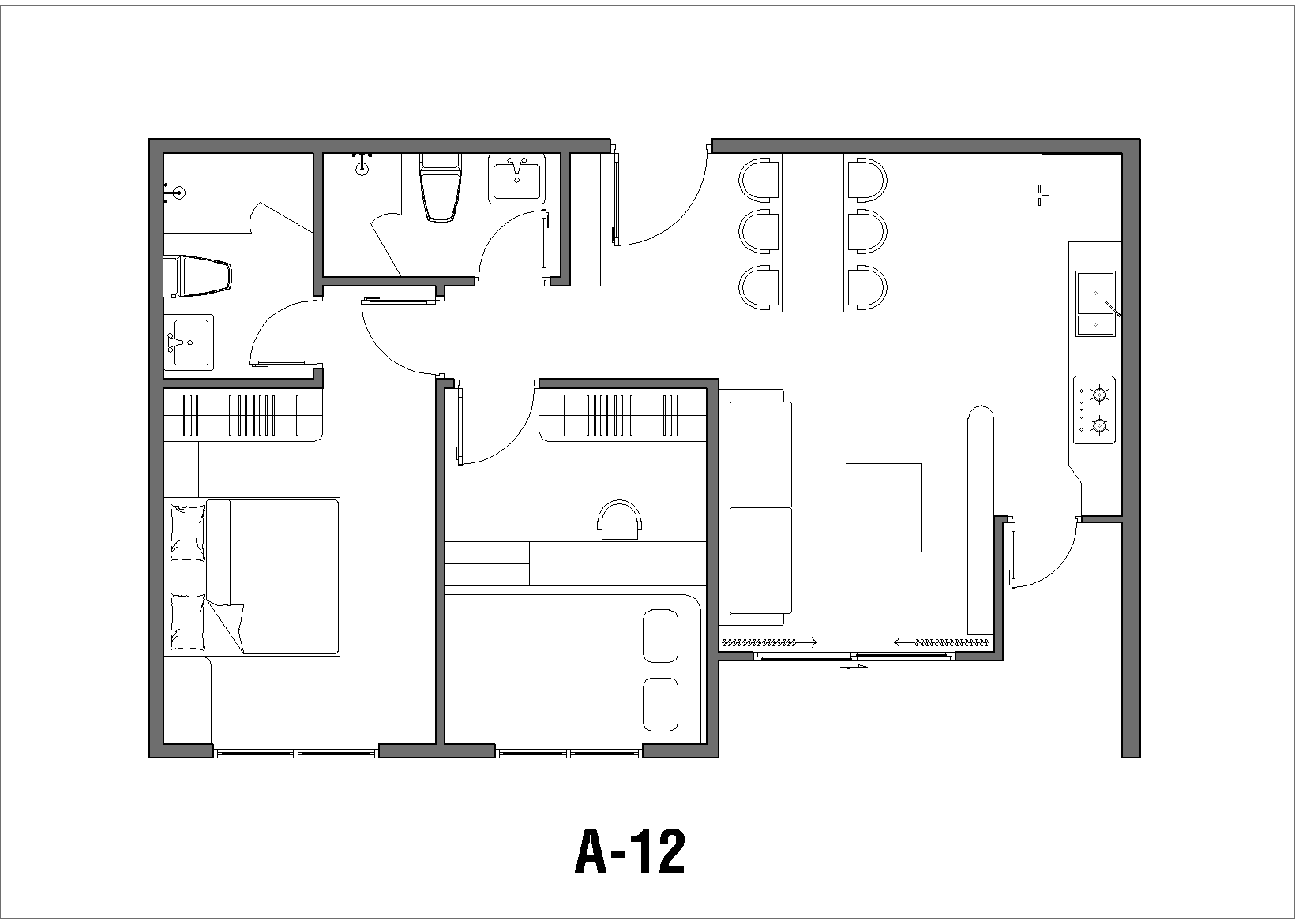
Mặt bằng căn hộ A-12 được bố trí với hai phòng ngủ liền kề, khu sinh hoạt chung rộng mở gồm bếp – bàn ăn – phòng khách kết nối thành một không gian liên hoàn. Khu vệ sinh đặt gọn ở trung tâm lối đi, giúp tối ưu diện tích và thuận tiện di chuyển. Tổng thể mặt bằng gọn gàng, khoa học và phù hợp cho gia đình nhỏ.
Căn nhà được thiết kế đồng bộ với bố cục mở, tạo cảm giác rộng rãi và thông thoáng. Khu vực bàn ăn nằm ở trung tâm, nổi bật với bàn gỗ lớn và hệ gương chia ô giúp nhân đôi không gian. Phòng khách sáng thoáng nhờ cửa kính lớn, nội thất gỗ tông ấm và mảng tường cong kết hợp đèn led mang lại cảm giác mềm mại. Khu bếp được bố trí gọn gàng dọc theo tường, hệ tủ tối ưu công năng và điểm nhấn là mảng ốp họa tiết tổ ong. Từng chi tiết được phối hợp hài hòa, từ ánh sáng, vật liệu đến màu sắc, biến căn hộ thành một không gian sống ấm cúng, tiện nghi và đầy tính thẩm mỹ.
Đáp ứng yêu cầu về chất lượng cao, sử dụng vật liệu bền bỉ nhưng vẫn đảm bảo chi phí hợp lý, mang lại giá trị tối ưu cho khách hàng.
Căn hộ The Beverly sau khi hoàn thiện nội thất đã thay đổi hoàn toàn so với hiện trạng ban đầu.
Căn hộ không chỉ đáp ứng nhu cầu sống tiện nghi mà còn thể hiện gu thẩm mỹ và phong cách sống của gia chủ, được bàn giao đúng thời hạn với sự hài lòng tuyệt đối.
Công ty TNHH SX&TM Nội Thất Combo
Xưởng Sản Xuất

19/5, Vĩnh Phú 32,Thuận An, Bình Dương
Diện tích: 700m2, Nhân lực: 20, Máy móc: CNC 12 mũi, dán cạnh, cưa bàn, phòng sơn

154/5, Vườn lài An phú Đông,Q.12,TP.HCM
Diện tích: 500m2, Nhân lực: 10, Máy móc: CNC 12 mũi, dán cạnh, cưa bàn, phòng sơn
Văn Phòng

19/5, Vĩnh Phú 32,Thuận An, Bình Dương
Nhân lực: 20 (xưởng + thiết kế + mkt)

12 Đường số 9, P. Linh Trung, TP. Thủ Đức
Văn phòng đại diện